17 Main St, Arthurton

$600.00 per WEEK

1,688 m2

COMMERCIAL/INDUSTRIAL LEASE OPPORTUNITY

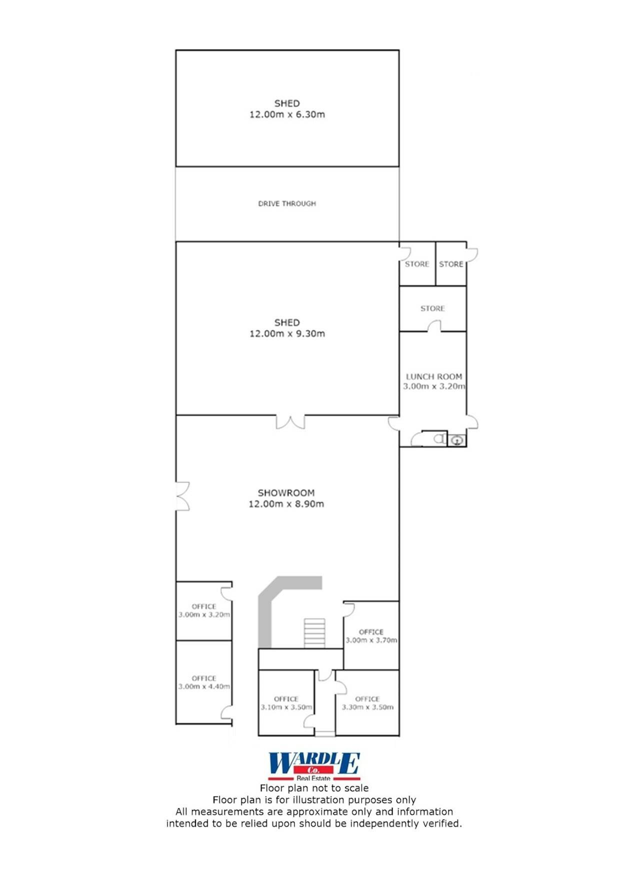
For lease is this versatile warehouse or retail property which was previously used as a Rural Farm Agency.  Well suited to a multitude of uses STC with multiple options available as lessor is open to leasing out separate tenancies ie showroom/office or sheds & yard. 

Main show room, 5 offices, lunchroom with w/c and 3 storerooms.

Shed 1 is attached to the main show room.

Show room, offices and lunchroom - 247.3m2*

Shed 1 with pallet racking and storeroom - 119.3m2*

Cover way - 55.2m2*

Shed 2 - 75.6m2*

Yard space - 1,163.9m2*

Total lease area - 1,688.3m2*

The property is fully fenced.

Lease is $600 per week plus outgoings.

 

 

 

*Denotes Approximately

 

 

1,688 m2

Details

Address 17 Main St, Arthurton
Price $600.00 per WEEK
Property Type Commercial
Property ID 9958
Category Showrooms/Bulky Goods, Industrial/Warehouse
Land Area 1,688 m2
Office Area 247m2
Warehouse Area 194m2

Tools

Share This Property