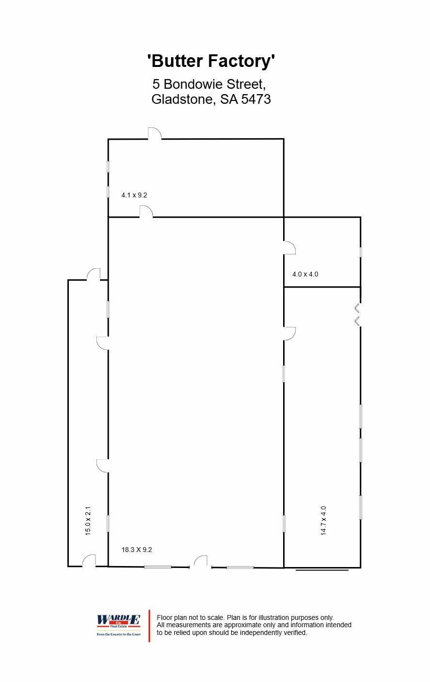
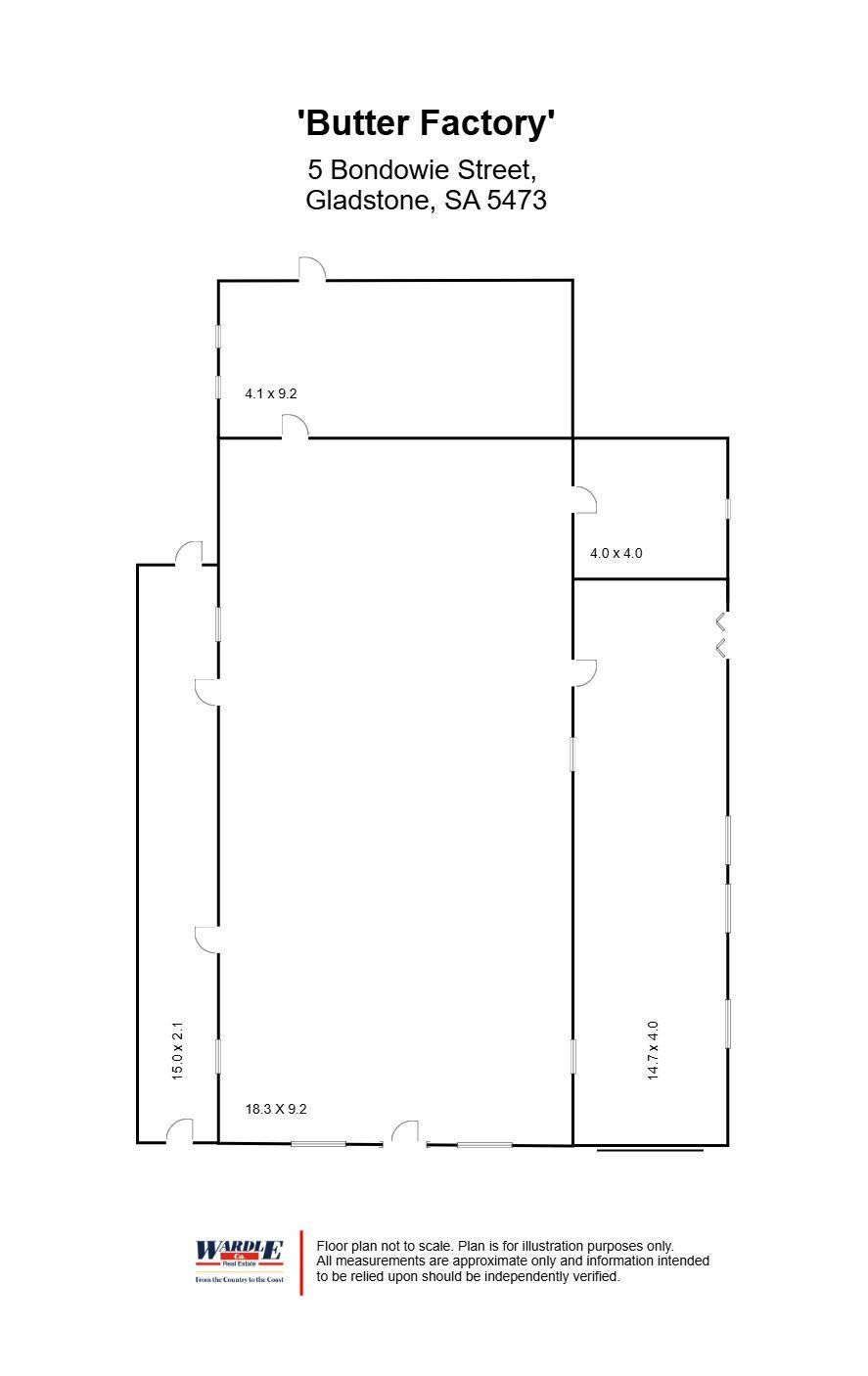
5 Bondowie Street, Gladstone

$129,000

1 1 6 1,100 m2

BUTTER FACTORY - PRICE ADJUSTMENT NOW $129,000

 

Historic Stone Factory – Restored Foundations, Endless Potential

Own a slice of local heritage with the iconic RJ Finlayson Butter Factory – a unique stone building full of character and potential. (not heritage listed) The original stonework has recently undergone professional restoration, with skilled stonemasons engaged to stabilise and preserve the core structure, giving this historic gem a solid foundation for its next chapter.

While the original stone building stands strong, the later external additions are ready for a creative overhaul. That’s your opportunity: start fresh and bring your vision to life.

Whether it’s a boutique gin distillery, a bold industrial-style residence (STCC) , or a one-of-a-kind commercial space, this property is a rare blank canvas waiting to be reimagined.

Water connected, Power to the premise,

Zoned : Commercial

Encumbrance or Easement: NIL 

Listed at $129,000 – history, character, and opportunity collide here. Don’t miss your chance to create something extraordinary.

RLA228106

 

1 1 6 1,100 m2

Details

Address 5 Bondowie Street, Gladstone
Price $129,000
Property Type Residential
Property ID 11554
Category House
Land Area 1,100 m2
Floor Area 332 m2

Tools

Share This Property