Sold

2 Wien Smith Ave, Clare

SOLD

4 2 2

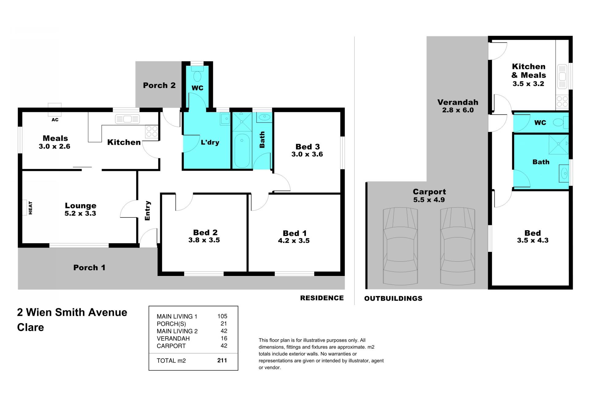
3 BEDROOM HOME WITH SELF-CONTAINED FLAT

  • An elevated home on corner allotment, with self-contained granny flat
  • Wide entrance hallway into the lounge room which offers gas heater
  • Three spacious bedroom, all with ceiling fans
  • Separate bath and shower in the bathroom
  • Informal kitchen / dine with wall unit air conditioner
  • Large laundry and separate toilet
  • Bonus stand-alone flat with kitchen/dine, bathroom and bedroom
  • Double carport with garden shed, fruit trees and established garden
  • The property is ideal for first home or investment, close to all facilities

RLA228106

4 2 2

Details

Address 2 Wien Smith Ave, Clare
Price SOLD
Property Type Residential
Property ID 10051
Category House

Tools

Share This Property